Blackthorn Drive, Leicester, LE4 1BH

For Sale £225,000

2 1 1
Well presented two-bedroom bungalow situated in a quiet location overlooking parkland to the front and benefiting from a recently refitted kitchen and bathroom.

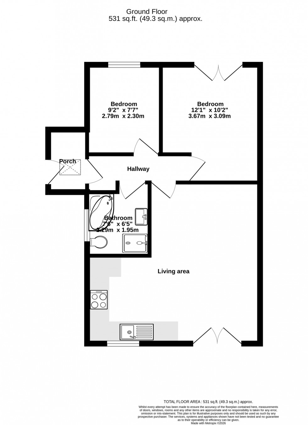
Entered at the side through a composite door into a recently built Entrance Porch, which provides an excellent space for coats and shoes and has a further composite door leading through into the Entrance Hall with doors off to all rooms. The Bathroom has been refitted with a four-piece suite incorporating a walk-in shower and a separate, compact corner bath, ideal for small children. The two bedrooms are on the rear with the main bedroom having double doors opening out to the rear garden. The current owners have also opened up the living space to make it more open plan, and there are double doors opening out to the front. The kitchen area has been refitted with a range of base and wall units, including integrated appliances, to include a washing machine and dishwasher, stainless steel oven with electric hob and chimney extractor over.

Outside, there are gardens to three sides, mainly laid to lawn with maturing shrubs and trees. There is a sheltered patio area at the front off the living space, and a larger patio area along the rear of the property. Allocated parking is situated in a communal parking area at the end of the rear garden with a gate to access the garden.

Location - The road links are superb, with links to the motorway, Beaumont Leys Shopping Centre, Abbey Park and Leicester City Centre. The local school within the area is Beaumont Lodge Primary School. If you do not drive, then there is a bus service available.
  • Well presented throughout
  • Two Bedrooms
  • Refitted Kitchen
  • Open plan living
  • Refitted Bathroom with separate shower
  • Allocated parking at rear
  • Quiet location overlooking parkland
  • Front and rear gardens
Floorplan for Blackthorn Drive, Leicester, LE4 1BH
EPC Graph for Blackthorn Drive, Leicester, LE4 1BH
Similar Properties

Book a FREE valuation

Find out how much your property is worth