Home Property Sales & Lettings are delighted to present to the market this stunning extended three-bedroom mid-terraced property, located on the ever-popular Beaumanor Road, off Abbey Lane in Leicester.
Having recently undergone a full renovation throughout, the property has been finished to an exceptional standard, offering a perfect blend of modern style and comfort. Every detail has been carefully considered to create a home ready for immediate occupation and is ideal for first-time buyers, families, or investors alike.
Home Property Sales & Lettings are delighted to present to the market this stunning extended three-bedroom mid-terraced property, located on the ever-popular Beaumanor Road, off Abbey Lane in Leicester.
Having recently undergone a full renovation throughout, the property has been finished to an exceptional standard, offering a perfect blend of modern style and comfort. Every detail has been carefully considered to create a home ready for immediate occupation and is ideal for first-time buyers, families, or investors alike.
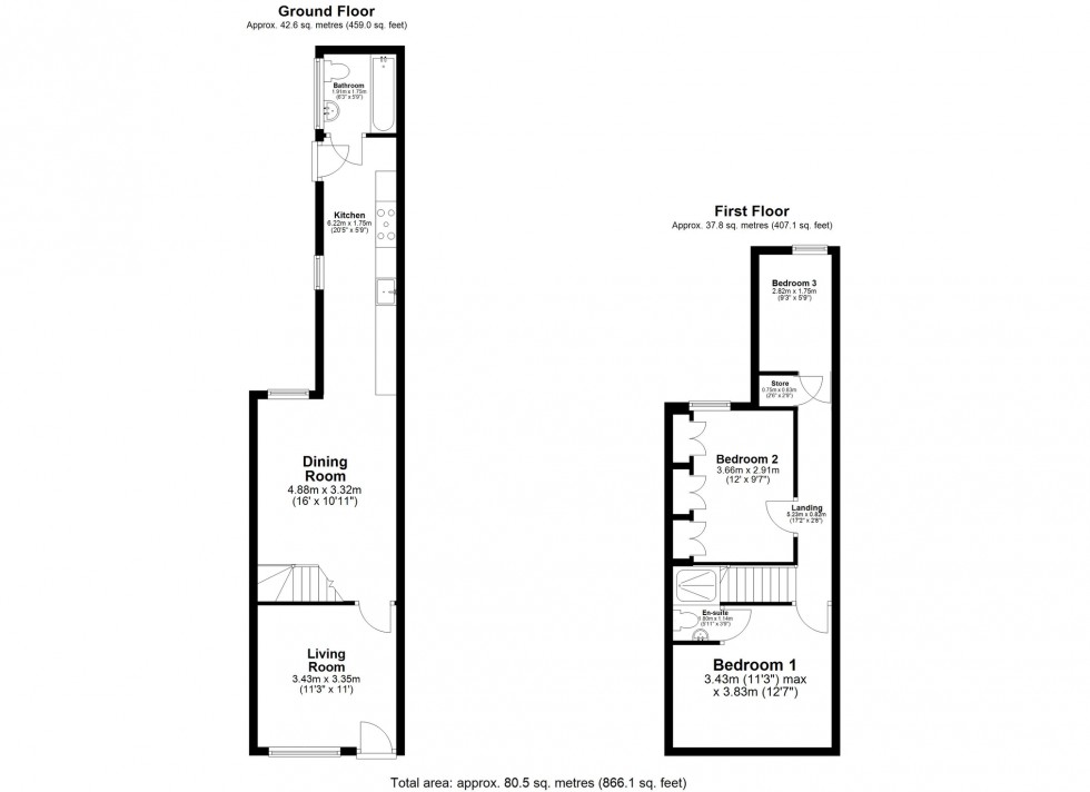
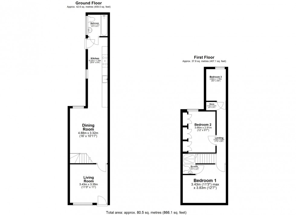
The accommodation comprises a welcoming entrance hallway, spacious open-plan living and dining area, a brand-new contemporary fitted kitchen, and a stylish family bathroom. Upstairs offers three well-proportioned bedrooms with the Amin bedroom benefitting from an en suite shower room, each presented in immaculate decorative order.
Externally, the property benefits from a low-maintenance rear garden, perfect for relaxing or entertaining.
This beautiful home is offered to the market with no upward chain, ensuring a smooth and straightforward purchase for prospective buyers.
Early viewing is highly advised to fully appreciate the quality and finish of this superb renovation.
ð Viewings can be arranged by contacting Home Property Sales & Lettings, Leicester.