Harrow Road, Leicester, Leicestershire

Let Agreed £1,400 PCM

3 1 2
A beautifully presented Victorian home available to rent in Leicester’s ever-popular and vibrant West End.
This impressive three-bedroom property has been finished to an exceptional standard, blending period character with stylish modern touches.

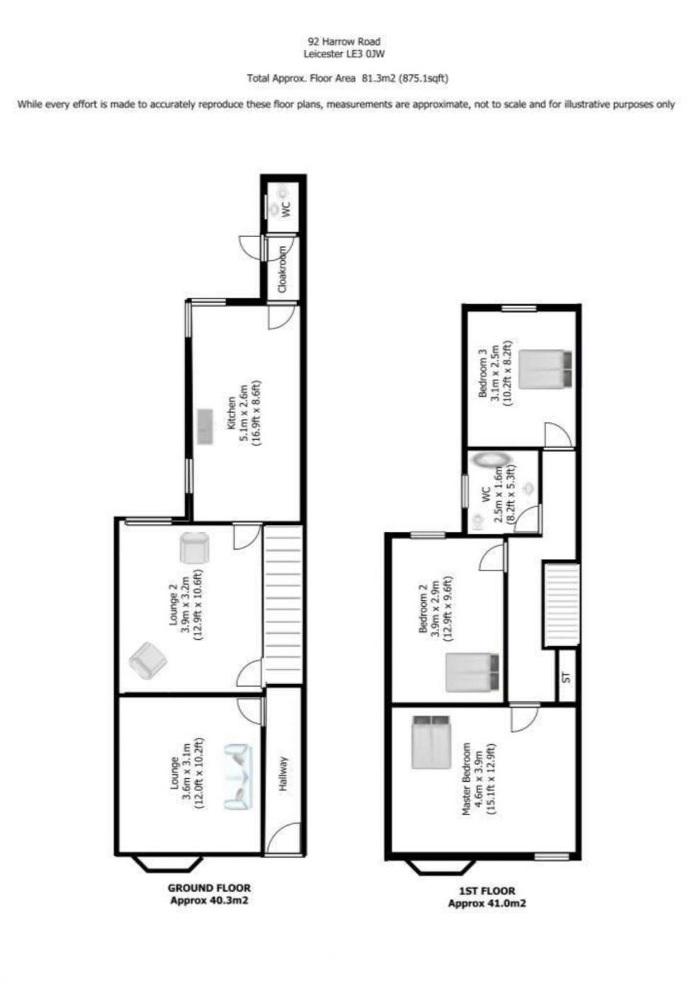
Inside, a welcoming hallway leads to two spacious reception rooms and a generous galley kitchen, complemented by a convenient ground-floor WC. Upstairs, the first-floor landing gives access to three well-proportioned bedrooms and a contemporary family bathroom.

Outside, the low-maintenance rear garden has been thoughtfully landscaped with slate paving and mature planted borders, creating an attractive space to unwind.

For further information or to arrange a viewing, please contact Home Property on 0116 221 4139. All tenancy agreements are subject to the usual checks and applications.
  • * Three Bedrooms
  • * Two Reception Rooms
  • * Ground Floor WC
  • * enclose & Private Rear Garden Area
Floorplan for Harrow Road, Leicester, Leicestershire
EPC Graph for Harrow Road, Leicester, Leicestershire
Similar Property

Book a FREE valuation

Find out how much your property is worth